入驻品牌
REARD活动版块
活动预告
活动回顾
视频回顾
× 会员管理
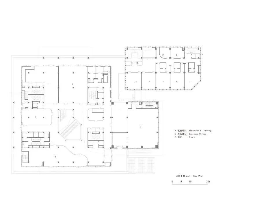
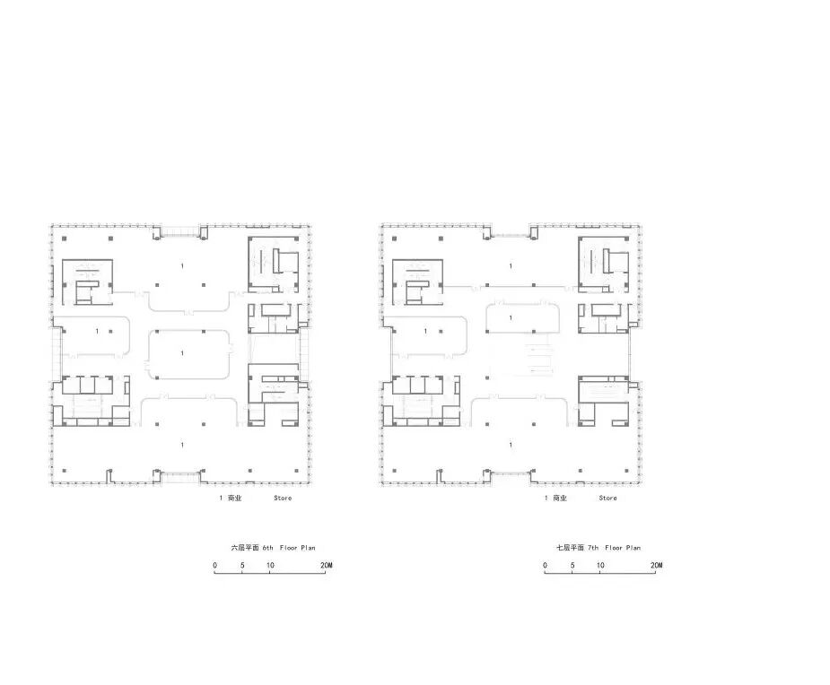
一站式全民教育综合体 | 扬州翼立方
设计公司: 筑森设计
项目类型: 地产设计 商办类
业主单位: 扬州教育资产管理有限公司
项目地点: 扬州市邗江区蒋王片区,北侧是邗江区核心商业经济中心,东临城市干道国展路,与西银沟社区公园隔路相望,南临城南快速路,位于邗江区中轴线南端
主持设计师: 张旭、邹旦妮
设计团队: 乐巍、陈欣、周魁、刘玉婧、颜小剑、孙平

一站式全民教育综合体-_-扬州翼立方_0000_图层-1.jpg一站式全民教育综合体-_-扬州翼立方_0001_图层-2.jpg

1.gif一站式全民教育综合体-_-扬州翼立方_0002_图层-3.jpg

2.gif一站式全民教育综合体-_-扬州翼立方_0003_图层-4.jpg一站式全民教育综合体-_-扬州翼立方_0004_图层-5.jpg一站式全民教育综合体-_-扬州翼立方_0005_图层-6.jpg

3.gif一站式全民教育综合体-_-扬州翼立方_0006_图层-7.jpg


640-1.jpeg
640-2.jpeg
640-3.jpeg
640-4.jpeg

一站式全民教育综合体-_-扬州翼立方_0006_图层-7-2.jpg


640-5.jpeg
640-6.jpeg
640-7.jpeg
640-8.jpeg

一站式全民教育综合体-_-扬州翼立方_0007_图层-8.jpg


640-9.jpeg
640-10.jpeg
640-11.jpeg
640-12.jpeg
640-13.jpeg
640-14.jpeg

一站式全民教育综合体-_-扬州翼立方_0008_图层-9.jpg

0
全部评论
相关推荐
>联系我们
REARD团队
电话:18321317492 | 021-66690276
电子邮件:info@reardatchina.com
微信小程序
微信关注
版权所有 ©上海锐埃文化传媒有限公司|REARDatChina.com|reard-urbanrenewal.com 沪ICP备19014984号-1|沪ICP备2022003455号-1
(https://beian.miit.gov.cn/)