入驻品牌
REARD活动版块
活动预告
活动回顾
视频回顾
× 会员管理
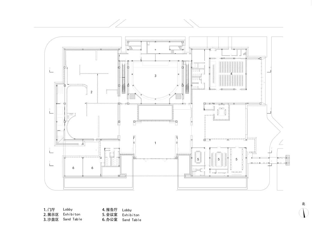
【2023REARD获奖作品/筑森设计】“两湖”创新区规划展示馆
设计公司: 江苏筑森建筑设计有限公司
项目类型: 地产设计 公建类
业主单位: 伟驰控股集团有限公司
项目地点:
主持设计师:
设计团队:

0头部.jpg【2023REARD获奖作品_筑森设计】“两湖”创新区规划展示馆-1_01.jpg【2023REARD获奖作品_筑森设计】“两湖”创新区规划展示馆-1_03.jpg【2023REARD获奖作品_筑森设计】“两湖”创新区规划展示馆-1_04.jpg【2023REARD获奖作品_筑森设计】“两湖”创新区规划展示馆-1_05.jpg1.gif【2023REARD获奖作品_筑森设计】“两湖”创新区规划展示馆-1_07.jpg2.gif【2023REARD获奖作品_筑森设计】“两湖”创新区规划展示馆-1_09.jpg3.gif【2023REARD获奖作品_筑森设计】“两湖”创新区规划展示馆-2_02.jpg4.gif【2023REARD获奖作品_筑森设计】“两湖”创新区规划展示馆-2_04.jpg5.gif【2023REARD获奖作品_筑森设计】“两湖”创新区规划展示馆-2_06.jpg6.gif【2023REARD获奖作品_筑森设计】“两湖”创新区规划展示馆-2_08.jpg7.gif【2023REARD获奖作品_筑森设计】“两湖”创新区规划展示馆-3_03.jpg8.gif【2023REARD获奖作品_筑森设计】“两湖”创新区规划展示馆-3_05.jpg9.gif【2023REARD获奖作品_筑森设计】“两湖”创新区规划展示馆-3_07.jpg10.gif【2023REARD获奖作品_筑森设计】“两湖”创新区规划展示馆-3_09.jpg

11.jpg
12.jpg
13.jpg
14.jpg
15.jpg
16.jpg

【2023REARD获奖作品_筑森设计】“两湖”创新区规划展示馆-3_11.jpg

0
全部评论
相关推荐
>联系我们
REARD团队
电话:18321317492 | 021-66690276
电子邮件:info@reardatchina.com
微信小程序
微信关注
版权所有 ©上海锐埃文化传媒有限公司|REARDatChina.com|reard-urbanrenewal.com 沪ICP备19014984号-1|沪ICP备2022003455号-1
(https://beian.miit.gov.cn/)